15566

Repräsentative Stadtvilla in grüner und ruhiger Wohnlage mit Sonnenterrasse***Bezugsfrei zum 01.10.2025***Wannenbad***Kfz-Stellplatz***

298.000€

3

0

1

1

Die Wohnung befindet sich in Schöneiche, mitten im Grünen und trotzdem stadtnah gelegen. Schöneiche liegt unweit von Berlin entfernt und ist für viele ehemalige Berliner, auf Grund der ruhigen und grünen Lage, ein beliebter Wohnort. Dafür sprechen die vielen neu entstandenen EFH und Wohnanlagen. Die unmittelbare Nähe zum Wasser und Wald schaffen einen hohen Freizeit- und Erholungswert dieses Standortes. Aktive Erholung bieten zum Beispiel Spaziergänge, Wanderungen und Jogging im vor der Tür liegenden Berliner Stadtforst. Über die B1 ist das Stadtzentrum mit dem PKW in ca. 45 min. zu erreichen. Eine Straßenbahnverbindung besteht bis zum S-Bahnhof Rahnsdorf. Neben kleinen Geschäften und Läden gibt es in Zentrumslage ein großes Einkaufszentrum mit Dienstleistungseinrichtungen.

Das kleine, sehr gepflegte Mehrfamilienhaus mit nur 8 Wohneinheiten wurde 1997 erbaut und liegt in grüner und ruhiger Wohnlage. Das […]

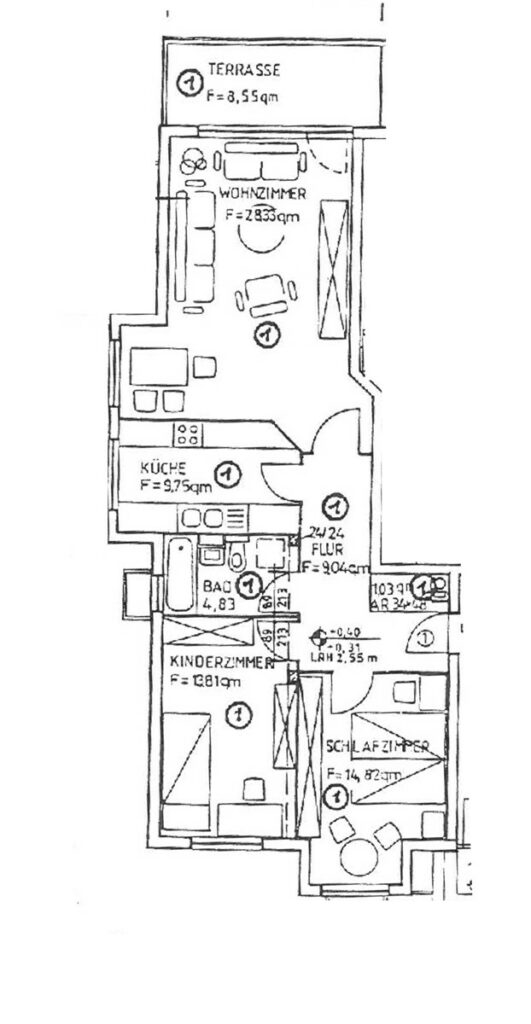
– Zentralheizung + Warmwasser – große Terrasse (Süd-Süd/West) – Laminatfußboden – gefl. Tageslichtbad mit Badewanne – Küche + Bad mit Fenster – Kabelanschluss – Telefonanschluss – Keller – Waschmaschinenraum – Fahrradabstellraum – Kfz-Stellplatz (Nr. 01)

Die Provision für den Käufer beträgt 3,57 % vom Kaufpreis inkl. 19% MwSt. und ist an die Firma WECHMANN IMMOBILIEN zu zahlen. Die Provision für den Verkäufer beträgt 3,57 % vom Kaufpreis inkl. 19% MwSt. und ist an die Firma WECHMANN IMMOBILIEN zu zahlen. Alle genannten Angaben zum Objekt beruhen auf den Angaben des Eigentümers. Folgen Sie uns auch auf unserem Instagram Kanal, um immer über unsere neuesten Immobilien informiert zu werden. Wir unterstützen Sie professionell in allen Angelegenheiten und vermitteln Ihre Immobilie zum bestmöglichen Preis. Sie können sich zurücklehnen, denn wir zeigen Ihnen effektive Maßnahmen für eine erfolgreiche Vermittlung. Wir möchten Ihnen damit das Gefühl von Sicherheit und Transparenz vermitteln. Die Firma WECHMANN IMMOBILIEN ist Ihr starker Partner beim Verkauf, der Vermietung und der Bewertung Ihrer Immobilie. Wir beraten Sie umfangreich und kostenlos in unserem Büro, am Telefon oder per E-Mail.

Teilen auf

Objektangaben

  • Objektnummer:8015
  • Wohnfläche:84,90 m²
  • Verfügbar ab:01.10.2025
  • Zimmer:3,0
  • Terrassen:1,0
  • Stellplätze:1,0

Kosten

  • Kaufpreis:298.000,00 €
  • Hausgeld: 390,00 €

Ausstattung

  • Baujahr:1997
  • Boden:Laminat
  • Heizungsart:Zentralheizung
  • Befeuerung:Gas
  • Unterkellert:Ja
  • Ausweistyp:Bedarf
  • Energieträger:Gas
  • Effizienzklasse:C
  • Gültig bis:13.07.2028
  • Endenergiebedarf:98.00 kWh/(m²*a)
  • Baujahr:1997

Ihre Anfrage

Günther Wechmann

Tel.: Auf Anfrage

info@wechmann-immobilien.com

NEUESTE IMMOBILIEN

12526

4

1

0

Wohnfl: 105,00 m²

Kaufpreis

449.000 €

Kontaktformular